- Projetos com extrema economia;
- Projetos com detalhamento impecável;
- Memória de Cálculo Completa e Complexa;
- Listas de materiais completas (para metálicas, listas de parafusos, arruelas, porcas, calhas etc.);
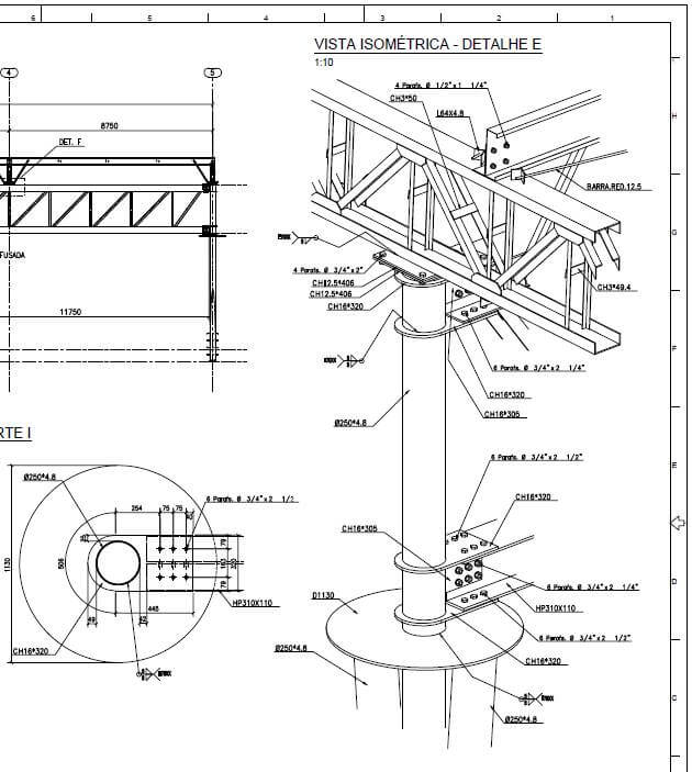
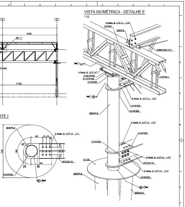
Realizamos todos os tipos de telhados em estruturas metálicas. Nosso sócio diretor Barbosa é um calculista de aço experiente e renomado.
Ideal para quem quer economizar ao máximo, em suas industrias, com consultorias e projetos completos, para pisos, fundações, muros de arrimos, cobertura metálicas, fundações e é claro, tudo com o máximo de economia.
Traga o projeto completo do seu galpão comercial para a Barbosa Estrutural, realizamos todos os projetos complementares.
Galpões Metálicos com excelentes taxas é aqui!
Ideal para quando uma edificação existente precisa passar por alguma intervenção ou possui alguma manifestação patológica existente.
Realizamos todos os tipos de ensaios necessários para prospecção estrutural, realizamos asbuilt no local com retirada de informação de forma minuciosa e precisa, com scanners, drones etc.
Realizamos reforços de estruturas metálicas industriais complexas (consulte nossos vídeos no Youtube para ver nossos diversos casos resolvidos)
Ideal para instalações de fundações para base de máquinas, instalações de talhas, pontes rolantes, caldeiras, projetos de muros de arrimos etc.
Realizamos fundações e bases de equipamentos complexas, consulte mais projetos no site para conferir modelos estruturais variados e diversos.
Ideal para pequenos detalhes que faltam na sua indústria/comércio/imóvel institucional, emitimos projetos detalhados com memórias de cálculos desses itens que podem ser considerados “pequenos”.
Estruturas calculadas minuciosamente conforme solicitação personalizada desses elementos, em específico, com o máximo economia e segurança.
Projetos realizados de forma extremamente personalizada, com fundações.
